
შპს "დემასი"- მეხდაცვა
აქტიური მეხამრიდის შერჩევა
დამკვეთი: შპს ,,დემასი,,
პროექტის დაკვეთა მოხდა 2018 წლის 16 ნოემბერს
პროექტი წარმატებით დასრულდა 2019 წლის იანვარში.
ობიექტი შპს"დემასის" ტერიტორიისა და მასზე განლაგებული შენობების პირველი დონის მეხდაცვის მისაღწევად, მიღებული იქნა გადაწყვეტილება ტერიტორიაზე დამონტაჟდეს აქტიური მეხამრიდი, რომელმაც ბოლო 10 წლის განმავლობაში დიდი გამოყენება ჰპოვა კონსტრუქციის სიმცირისა და დიდი დაცვის ზონის გამო. მისი მუშაობის პრინციპი ეფუძნება დამუხტულ ღრუბელსა დამიწას შორის პოტენციალის სხვაობის სიდიდის გამოყენებას. იმ მომენტში, როდესაც ელ. ველის დაძაბულობა მიაღწევს კრიტკულს, მეხამრიდი განახორციელებს წინმსწრებ განმუხტვას მის კორპუსში ჩამონტაჟებული მაღალი ძაბვის გენერატორის საშუალებით და შექმნის პლაზმურ არხს ღრუბლების მიმართულებით. ხდება ელვის ინიცირება წინსწრებად სასურველ წერტილზე, ამასთან ერთად
იზრდება მეხამრიდის დაცვის ზონა. შერჩეულ იქნა FOREND EU-M an FOREND EU-PETEX-M ტიპის აქტიური მეხამრიდი, რომელიც ISO სტანდარტებს შეესაბამება და მწარმოებელისაგან აქვს კოროზიის მედეგობის 25 წლიანი გარანტია. ის დამზადებულია უჟანგავი მასალი-საგან, რომელიც უძლებს ატმოსფეროს ქიმიურ ზემოქმედებას.
OREND EU-M an FOREND EU-PETEX-M ტიპის აქტიური მეხამრიდის ელვამიმღები უზრუნველყოფს როგორც დადებითი, ისე უარყოფითი მუხტების მიღებას. ის შედგება სამი ნაწილისაგან: უჟანგავი კორპუსისაგან, იონოგენერატორისა და ანძასთან დასამაგრებელი ქუროსაგან. იონოგენერატორი მოთავსებულია სპეციალურ გარსში და იმყოფება უჟანგავი კორპუსის შიგნით. ჭექა-ქუხილისას, როდესაც ატმოსფერული ველი იზრდება,
იონოგენერატორი იწყებს გარშემო მყოფი ჰაერის იონიზაციას. ის გამოიმუშავებს როგორც დადებით, აგრეთვე უარყოფით სტატიკურ მუხტებს. რის გამოც აქტიური მეხამრიდი მთლიანად იღბს თავისთავზე მეხის დარტყმას დასაცავი ზონის მთელ ფართზე.
განმარტება
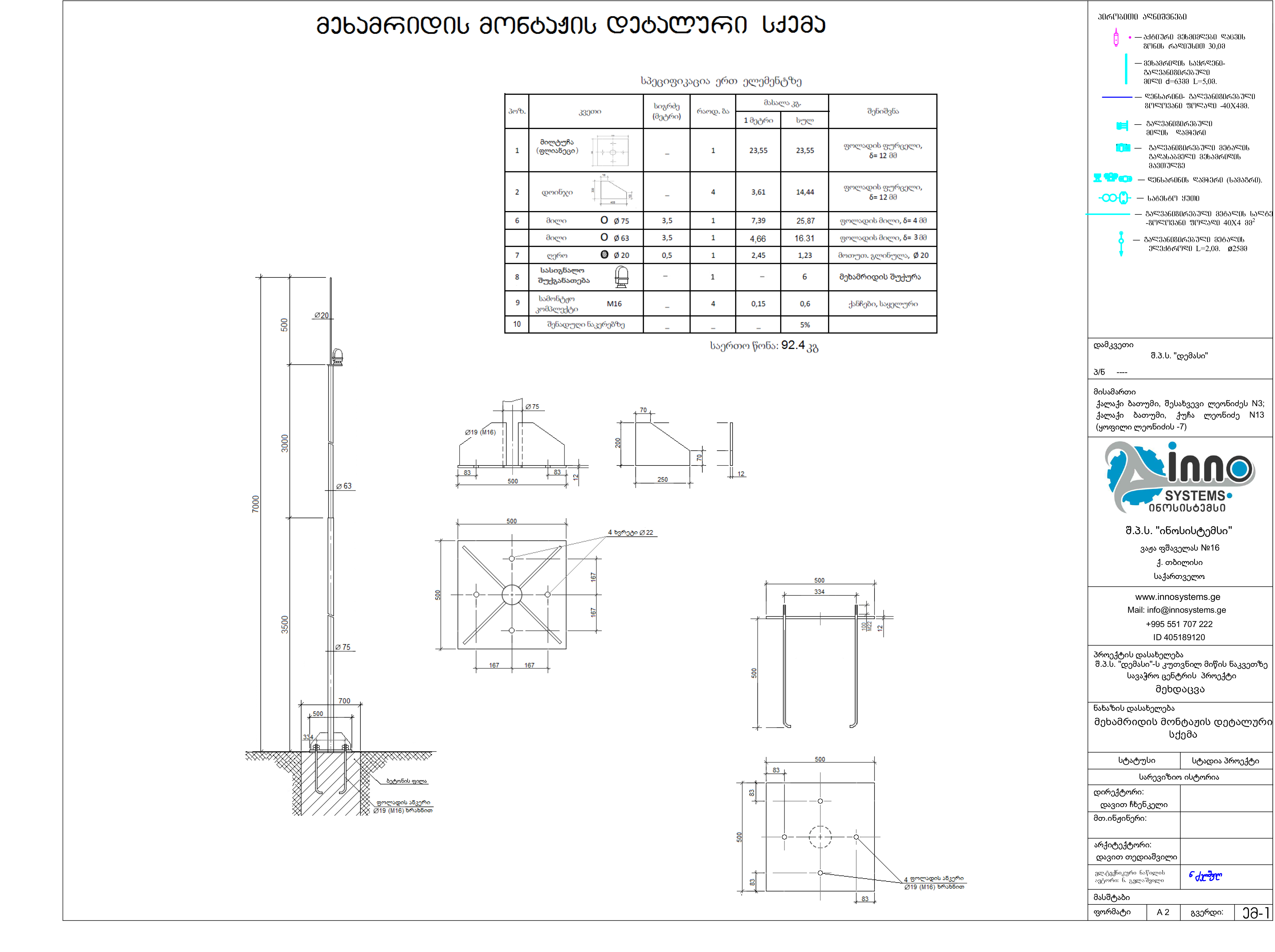
მეხამრიდისთვის ვიყენებთ შენობის სახურავზე დამონტაჟებულ აქტიურ მეხამრიდს `FOREND EU-M an FOREND EU-PETEX-M ΔU=45.0m. Rp=45 , 6,0 მეტრის სიგრძის გალვანიზირებულიმილის საყრდენით. მეხამრიდი შენობის სახურავიდანაცილებული უნდა იყოს არა ნაკლები 4.0მ-ით. მოცემული მეხამრიდის I ხარისხის დაცვის ზონა წარმოადგენს 51.0 მეტრს,II-57.0მ-ს, III-64.0მ და IV-72.0 და რაც სავარაუდოდ სრულად უზრუნველყოფს დაპროექტებული შენობის, მის სახურავზე განთავსებული დანადგარებისა და ტერიტორიაზე განთავსებული დანადგარების დაცვას.
მეხამრიდის ყველა ელემენტი იზოლირებული უნდა იყოს სახურავის სხვა ელემენტებისაგან და მყარად დამაგრდეს კედლებსა დაგადახურვის ზედაპირზე სპეციალური სამაგრებით. მეხამრიდისათვის საჭიროა მოეწყოს ორი დამოუკიდებელი ჩამიწების კერა გალვანიზებული ელექტროდებისა დაგალვანიზირებული ზოლოვანი ფოლადის (40X40მმ.)სალტეს საშუალებით (სასურველია შენობის ორ საპირისპირო მხარეს) რომელთა წინაღობა არ უნდა აღემატებს 10 ომს.დენსარინი დაერთებულია ჩამიწების გალვანიზირებული ფოლადის სალტეზე 40X4მმ. სპეციალური გადასაბმელებით.
მეხამრიდის კონტურის ყველა ელემენტი შესრულებული უნდაიყოს გალვანიზებული მეტალით. დაუშვებელია შედუღებით გადაბმა.რადგან გრუნტის მონაცემების სათანადო შესწავლა არჩატარებულა, მონტაჟის დამთავრების შემდეგ ჩამიწებისკონტურზე უნდა ჩატარდეს შესაბამისი გაზომვები; საჭიროების შემთხვევაში ჩამიწების კონტურს დაემატოსვერტიკალური ჩამამიწებლებიელექტროდები.